Via Nicola Parravano

Marconi/Roma

L’immobile si trova in Via Nicola Parravano, tra Marconi e San Paolo, a pochi passi dall’Università Roma Tre. La zona è comoda e ben servita: negozi, servizi quotidiani e collegamenti pubblici incluso un capolinea bus a pochi passi.
L’appartamento affaccia su un parco adiacente, un elemento raro che garantisce verde, silenzio e una qualità di vita superiore.
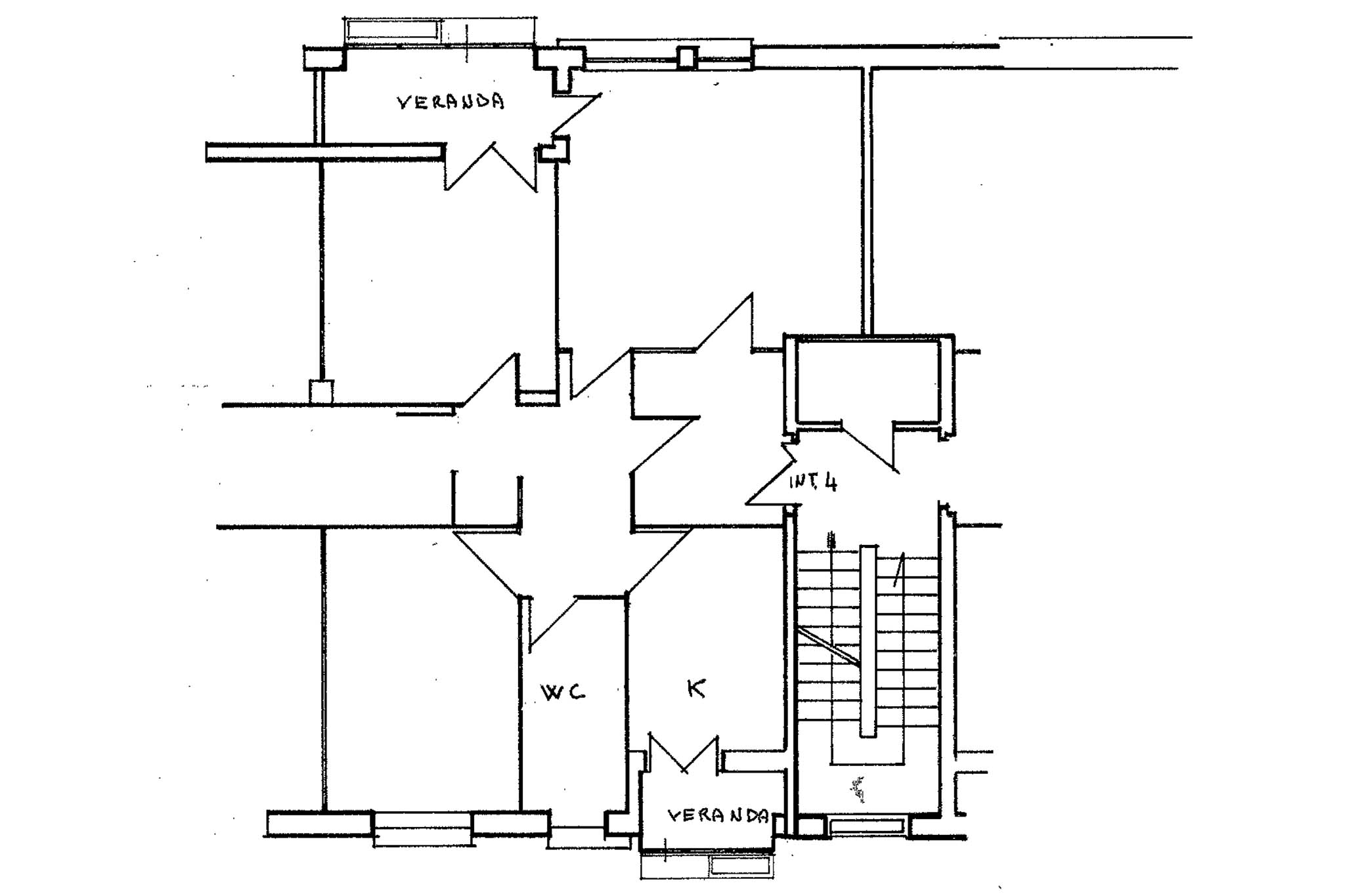
Gli interni sono completamente da rinnovare, ma gli spazi ampi e la distribuzione razionale permettono di immaginare soluzioni moderne e funzionali. L’ingresso è grande e accogliente; il salone, con doppia finestra e balcone (oggi verandato) esposto a sud, gode di una luminosità piena e di un affaccio aperto nel verde. La zona notte comprende due camere da letto, mentre la cucina è abitabile e dotata di una seconda veranda. Completano la proprietà un bagno e un comodo ripostiglio di generose dimensioni.
Una proposta di sicuro interesse per chi cerca ambienti versatili, personalizzabili e con un potenziale progettuale importante.

Tipo immobile:

Appartamento

Uso:

Residenziale

MQ:

99

Piano:

1 di 5

Prezzo:

Eur 349.000,00

Stato manutenzione:

Da ristrutturare

Camere:

3

Bagni:

1

Balcone:

Si

Riscaldamento:

Centralizzato

Ascensore:

Si

Spese condominiali:

Eur 65,00/mese

Anno di costruzione:

1969

CLASSE ENERGETICA: G

Indice Prestazione Energetica: 175.00