Via Ugo Tognazzi

Vallerano/Roma

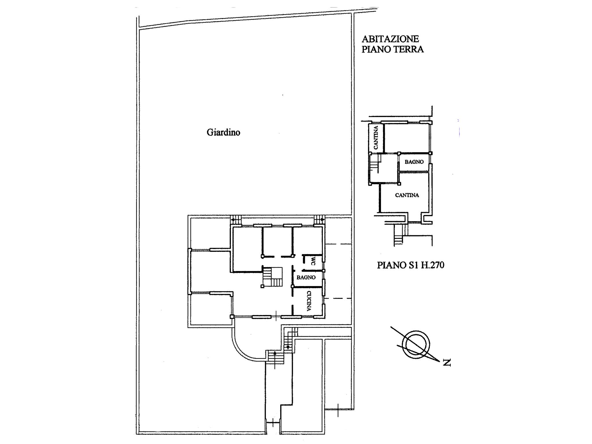
In zona Vallerano, proponiamo una villa bifamiliare inserita in un lotto di circa 1.000 mq, con ampio giardino curato e ottimamente distribuito.
L’immobile si sviluppa su due livelli (piano rialzato e piano seminterrato) per una superficie complessiva di circa 240 mq.
La zona giorno offre ampi saloni con camino, perfetti per accogliere amici e familiari in un ambiente caldo e accogliente.
La villa è composta da:
- piano terra: salone con camino e cucina a vista, 3 camere da letto, 2 bagni, veranda;
- piano seminterrato: sala hobby con camino e cucina a vista, 1 camera da letto, 1 bagno, 1 ripostiglio e un box auto triplo.
E' dotata di impianto fotovoltaico e caldaia ibrida.
Situata in un contesto tranquillo e riservato, la proprietà gode di una posizione strategica: a pochi minuti dalle principali arterie stradali come via Laurentina, via Pontina e il Grande Raccordo Anulare, che permettono di raggiungere agevolmente l’EUR e le altre zone di Roma.
Una soluzione ideale per chi desidera vivere nel verde, in un ambiente indipendente e silenzioso, senza rinunciare alla vicinanza con la città.

Tipo immobile:

Villa

Uso:

Residenziale

MQ:

240

Piano:

R+I di 2

Prezzo:

Eur 950.000,00

Stato manutenzione:

Ottimo

Arredamento:

Parzialmente arredato

Camere:

4

Bagni:

3

Giardino:

Si

Riscaldamento:

Autonomo

Posto auto:

box

Ascensore:

No

Spese condominiali:

Eur 67,00/mese

Anno di costruzione:

2002

CLASSE ENERGETICA: G

Indice Prestazione Energetica: 222,29